Nieuwe Uitleg 15 2514 BP Den Haag
Oppervlakte
175m²
Prijs
€ 185 m²/jr
Soort
Kantoorruimte
Locatie
Omschrijving
Adres
Nieuwe Uitleg 15, 2514 BP in Den Haag.
Object
Het betreft een moderne kantoorverdieping van ca. 175 m² in een Rijks monumentaal pand in het historische centrum van Den Haag.
Locatie
Deze kantoorlocatie, met uitzicht over de gracht van de Nieuwe Uitleg is zeer centraal gelegen.
Op loopafstand bevinden zich het Binnenhof, Lange Voorhout, de Denneweg en het Centraal Station Den Haag.
Door de centrale ligging kunt u alle voorzieningen welke u van de binnenstad mag verwachten te voet bereiken.
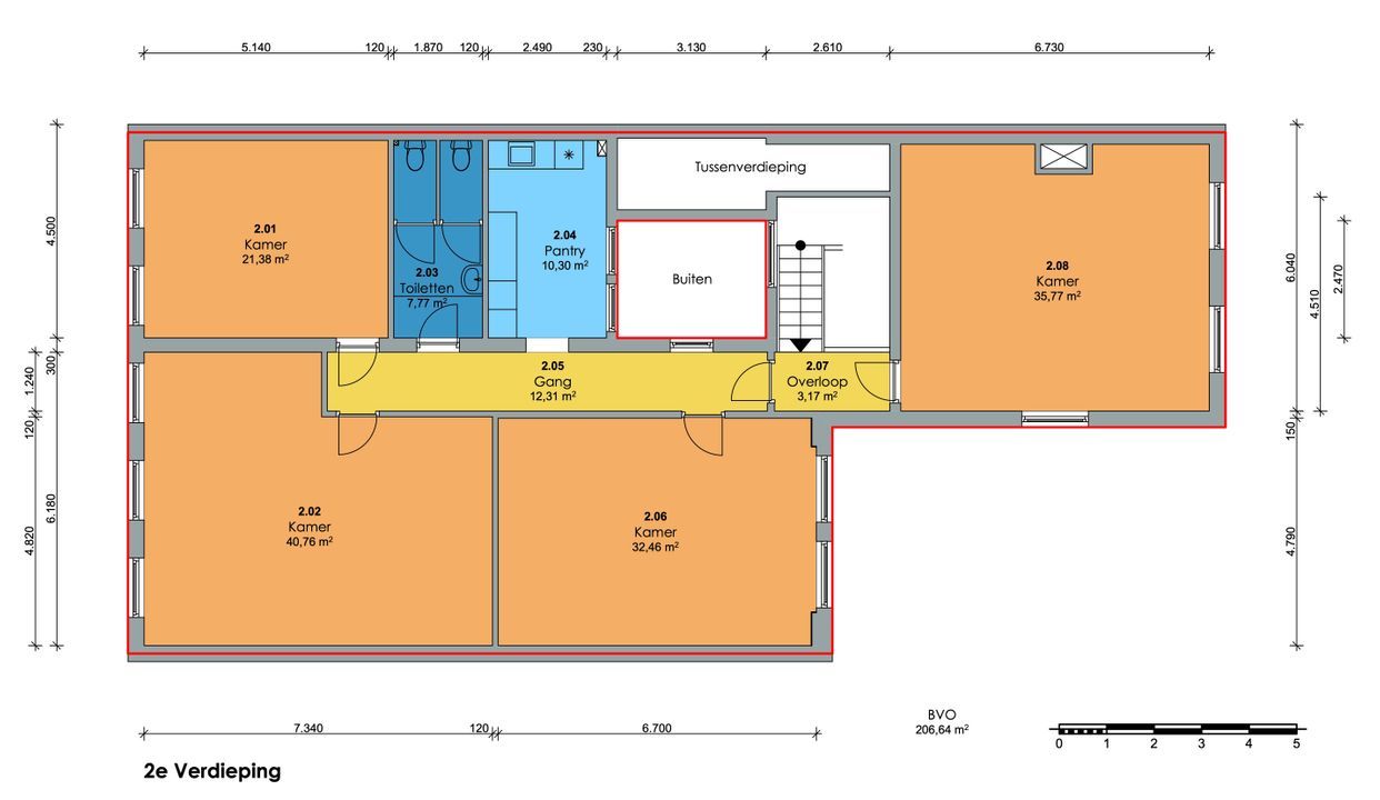
Oppervlakte
Het betreft een kantoorruimte van ca. 175 m² gelegen op de 2e verdieping.
Bereikbaarheid
Eigen vervoer
De bereikbaarheid met eigen vervoer is goed te noemen. Via onder andere de Korte Voorhout en de Koningskade is er een directe verbinding met het Rijkswegenverkeersnet (A4, A44, A12 en A13).
Openbaar vervoer
Ook de bereikbaarheid met het openbaar vervoer is erg goed. Op loopafstand zijn halteplaatsen te vinden voor buslijnen 22 en 24 en tramlijnen 15 en 17, welke een rechtstreekse verbinding verzorgen met het centrum en de NS-stations Den Haag Centraal en Hollands Spoor.
Lopend
Vanaf het Centraal Station wandelt u via de Koningskade, het Korte Voorhout en het Smidswater in nog geen 10 minuten naar de Maliestraat.
Parkeren
Er is in de directe omgeving openbaar (betaald) parkeren beschikbaar. Daarnaast zijn er in de directe omgeving zijn ook enkele openbare parkeergarages te vinden.
Oplevering
Het uiterst representatieve kantoorruimte verkeert in uitstekende staat van onderhoud en beschikt onder andere over de navolgende voorzieningen en installaties:
- representatieve hal/entree;
- dubbele toiletvoorziening;
- pantry;
- fraai trappenhuis;
- radiatoren met thermostaatventielen;
- te openen ramen;
- intercomsysteem;
Huurprijs
€ 185,=/m²/jaar te vermeerderen met BTW.
Energie- en servicekosten
€ 45,=/m²/jr. te vermeerderen met BTW, als voorschot op basis van nacalculatie.
De servicekosten behelzen onder andere de navolgende leveringen en diensten:
- elektraverbruik inclusief vastrecht (van het gehuurde, algemene ruimten en installaties);
- gasverbruik inclusief vastrecht;
- waterverbruik inclusief vastrecht;
- onderhoud installaties;
- glasverzekering ten behoeve van glas in buitengevel;
- eventuele gemeentelijke heffingen ten behoeve van gebruiker (niet OZB voor gebruiker);
- overig klein onderhoud algemene ruimten;
Huurtermijn
5 jaar met verlengingsperiodes van telkens 5 jaar.
Aanvaarding
Per direct.
Huurprijsbetaling
Per maand vooruit.
Huurprijsaanpassing
Jaarlijks, op basis van de wijziging van het maand-prijsindexcijfer volgens de consumentenprijsindex (CPI) reeks CPI-alle huishoudens (2015=100), gepubliceerd door het Centraal Bureau voor de Statistiek (CBS).
Zekerheidstelling
Bij ondertekening van de huurovereenkomst zal huurder een bankgarantie stellen of waarborgsom storten ter grootte van een kwartaalverplichting. (Huur en BTW)
Huurovereenkomst
Huurovereenkomst kantoorruimte en andere bedrijfsruimte in de zin van artikel 7:230a BW conform het model van de Raad voor Onroerende Zaken (ROZ) zoals op 30 januari 2015 vastgesteld en op 17 februari 2015 gedeponeerd bij de griffie van de rechtbank te Den Haag en aldaar ingeschreven onder nummer 15/20, alsmede de daarbij behorende algemene bepalingen.
BTW-status
Verhuurder wenst te opteren voor een BTW belaste verhuur.
Huurder dient voor tenminste 90% met omzetbelasting belaste prestaties te verrichten. Indien huurder niet aan dit criterium voldoet, zal van rechtswege sprake zijn van een van omzetbelasting vrijgestelde verhuur. In dit geval wordt de overeengekomen kale huurprijs, zonder de omzetbelasting, dusdanig verhoogd dat het voor de verhuurder ontstane financiële nadeel wordt gecompenseerd.
Voorbehoud
Een positief kredietinformatierapport van huurder ter beoordeling en goedkeuring van verhuurder.
Eventuele transacties dienen ter goedkeuring voorgelegd te worden aan onze opdrachtgever c.q. eigenaresse van het gebouw. Tot deze goedkeuring verleend is, zijn alle uitgebrachte aanbiedingen geheel vrijblijvend.
Honorarium
Mocht door bemiddeling van WMK Vastgoed een transactie tot stand worden gebracht, dan zult u ons hiervoor geen honorarium verschuldigd zijn.
Inlichtingen
WMK Vastgoed
www.wmkvastgoed.nl
info@wmkvastgoed.nl
070 - 21 21 9 21
Bovenstaande informatie is met zorg samengesteld en uit betrouwbare bron afkomstig. Ten aanzien van de juistheid ervan kunnen wij echter geen aansprakelijkheid aanvaarden. Deze informatie is uitsluitend bestemd voor geadresseerde. De informatie is geheel vrijblijvend en geldt slechts als uitnodiging om in onderhandeling te treden.
Kenmerken
- Prijs
- € 185 m²/jr
- Status
- Beschikbaar
Object
Soort
- Hoofdbestemming
- Kantoorruimte
Oppervlakten
- Totaaloppervlakte
- 175m²
Plattegronden
Nadere informatie gewenst
Vul uw gegevens in en wij nemen zo snel mogelijk contact met u op.

 
								 
								 
								 
								 
								 
								 
								 
								 
								 
								 
								 
								 
								 
								 
								 
								 
								 
								 
						 
						 
						